︎︎︎Informations


Architecture
2026

Edition
2026

Photographie
2025

Recherche
2025

Photographie
2025

Mémoire
2024

Photographie
2024

Photographie
2023

Photographie
2023
Photographie
2023

Photographie
2023

Photographie
2023

Recherches
2022

Architecture
2022

Architecture
2022

Photographie
2022

Architecture
2022

Photographie
2021

Dessin
2021

Photographie
2020

Architecture
2020

Recherches
2020

Photographie
2020

Architecture
2020

Photographie
2020

Architecture
2019

Architecture
2019

Architecture
2018

Photographie
2018

Architecture
2018

Architecture
2018

Photographie
2018

Photographie
2018

Dessin
2016



Annexe

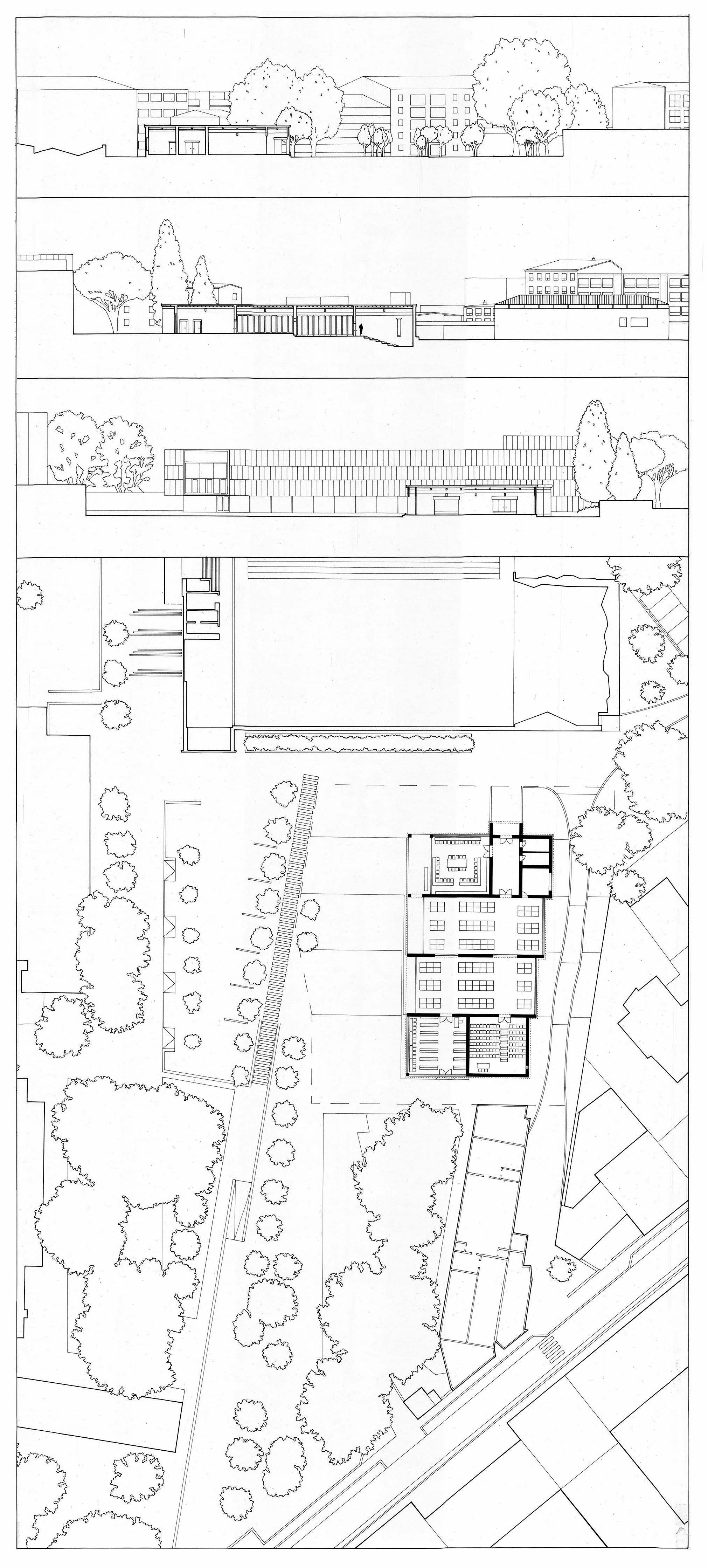
2019 — Architecture
Ce projet s’inscrit dans un site proche de notre école, au sein d’un parc et à proximité d’un gymnase. Nous devions imaginer une annexe pour l’ENSASE afin d’accueillir d’autre étudiant en architecture. 
Le programme de cet exercice était complet (environs 600 m2), néanmoins, j’ai choisi d’y ajouter une salle de conférences, car j’estimais cela nécessaire. Ce projet nous a permis de nous approprier les systèmes constructifs et de commencer à aborder la question du détail technique, de la composition d’un mur, d’une fenêtre et d’une porte.





© HugoTorre 2026 — All rights reserved

© HugoTorre 2026 — All rights reserved